Estação Pêssego do Metrô
Projeto: João Walter Toscano, Odiléa Helena Setti Toscano, Massaioshi Kamimura

Texto: Odiléa Helena Setti Toscano
Fotografias: João Walter Toscano


clique nas imagens para vê-las ampliadas


 

Esta estação de metrô, localizada na zona leste da cidade de São Paulo,está implantada em sítio de características topográficas marcantes, tendo como eixo um vale. Há nove anos, quando se iniciou o projeto, um córrego definia o vale, de encostas livres de ocupação e de assentamentos. Seguindo a tendência natural da grande metrópole que se expande para as zonas periféricas, este vale se transformou, o córrego foi canalizado e uma via expressa (Jacu-Pêssego), foi traçada e construída sobre ele. As áreas adjacentes foram ocupadas, a paisagem se modificou, mas o ponto inicialmente marcado para a estação permaneceu inalterado e intacta a sua função.
Com o adensamento da ocupação vizinha, a estação cumpre hoje não só seu papel de embarque e desembarque de passageiros que se destinam a outros eixos da cidade, mas permite, em sua passarela, que a população se desloque de um lado ao outro do vale, ligando os dois setores adjacentes à grande avenida, como uma rua elevada que integra as duas encostas.



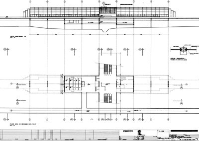
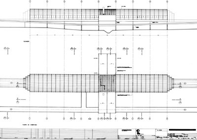
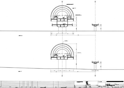
O partido levou em conta as possibilidades de intervenção no desenho do elevado, respeitando as condições técnicas adotadas pelo metrô. Optou-se por envolver o elevado, no segmento em que se localiza a gare, chegada e saída dos trens, com uma estrutura leve, formada por uma seqüência de arcos metálicos, cobertos em quase toda a sua extensão por telhas térmicas duplas de alumínio, arqueadas, formando um semicilíndro. No trecho que corresponde ao hall de chegada, as telhas se interrompem para dar lugar a vidros laminados curvos, permitindo iluminação zenital e vista da paisagem do vale. Dois blocos perpendiculares e simetricamente dispostos em relação ao eixo da gare, fazem a ligação entre o mezanino e as plataformas de embarque e desembarque.

 

 

O conjunto principal resulta, portanto, em uma planta em cruz, unindo-se a uma passarela que corre em sua maior extensão, paralelamente ao elevado, e cujas extremidades se ligam a dois terminais de ônibus, atravessando o vale e permitindo o trânsito livre dos usuários por via elevada.
A torre, suporte da caixa d'água e do relógio, vem como contraponto vertical. Nas duas extremidades do corpo da estação, três arcos de raios decrescentes fazem a transição do espaço interno para o externo, entre o interior da gare, coberto e envolto, e o elevado que se estende ao longo do vale, a céu aberto.
O projeto, cuja construção iniciada em 1990 só agora foi concluída, sofreu adaptações no sentido de adequá-lo às novas necessidades de articulação entre o metrô e os trens metropolitanos. Uma extensão de plataformas foi acrescentada, sem alterar a estrutura primeira do conjunto, uma vez que segue no mesmo sentido do leito do trem, e recebe igual tratamento.

(O presente texto faz parte do livro sobre a obra do arquiteto, que será publicado pela editora portuguesa Blau)

 

 

 

© ponto 1998 | www.ponto.org | 3 | index | extra | lista | cadastro | webmaster@ponto.org