|
Hospital do Aparelho Locomotor de Fortaleza,
CE Texto: André Augusto de Almeida Alves |
|
|
clique para ver as pranchas ampliadas, e os créditos fotográficos. |
Originária da atuação
da Fundação das Pioneiras Sociais em Brasília,
a Rede Sarah de Hospitais do Aparelho Locomotor surgiu em 1974 como
resposta à demanda por uma estrutura especializada no tratamento
de enfermidades do aparelho locomotor, sendo concebida como um subsistema
de saúde de alcance nacional cujo centro de referência
se localizaria em Brasília. O embrião deste subsistema,
segundo seus preceptores - entre eles o cirurgião Aloysio Campos
da Paz Júnior e o arquiteto João Filgueiras Lima - seria
inicialmente o Centro de Reabilitação Sarah Kubitschek,
construído em 1960 pela Fundação e que indesejadamente
se afastava cada vez mais de sua proposta inicial, transformando-se
gradualmente em um hospital ortopédico.
O Hospital do Aparelho Locomotor de Fortaleza,
inaugurado em 1999, constitui o desdobramento mais recente deste processo
de trabalho de mais de 20 anos.
As demais áreas do hospital foram
mantidas no pavimento térreo e, a exemplo do hospital de Salvador,
são ventiladas naturalmente por dois sistemas: o de convecção
e o de ventilação cruzada por ambiente. No primeiro, o
ar é resfriado e purificado por espelhos d'água e jatos
de água pulverizada antes de ser colhido por galerias posicionadas
em sentido oposto ao dos ventos dominantes, e por elas conduzido até
as aberturas existentes no piso, junto aos pilares. O ar é então
extraído por sucção, por sheds posicionados a favor
do vento. No segundo, as aberturas dos sheds são voltados para
direções opostas.
A disposição das enfermarias é similar à do hospital de Salvador, apresentando, no entanto, um sistema de dupla circulação, que segrega o trânsito de visitantes do de serviço. As circulações localizam-se ao longo das duas fachadas do bloco de internação. Alinhadas à circulação de visitantes estão os solários, que são utilizados pelos pacientes diariamente; junto à circulação de serviço estão as salas de gesso e tratamento. No último andar, cada apartamento tem uma varanda própria.
A fachada do bloco de internação
que se volta para o quadrante norte é protegida da insolação
por uma cobertura metálica em arco, que abriga o jardim em dois
níveis e integra visualmente o conjunto dos espaços internos
do hospital: em elevação, o próprio setor de internação,
no térreo, a entrada principal, o setor de internação
e alta, de fisioterapia e os demais serviços, por fim, no subsolo,
a administração.
|
|
|
|
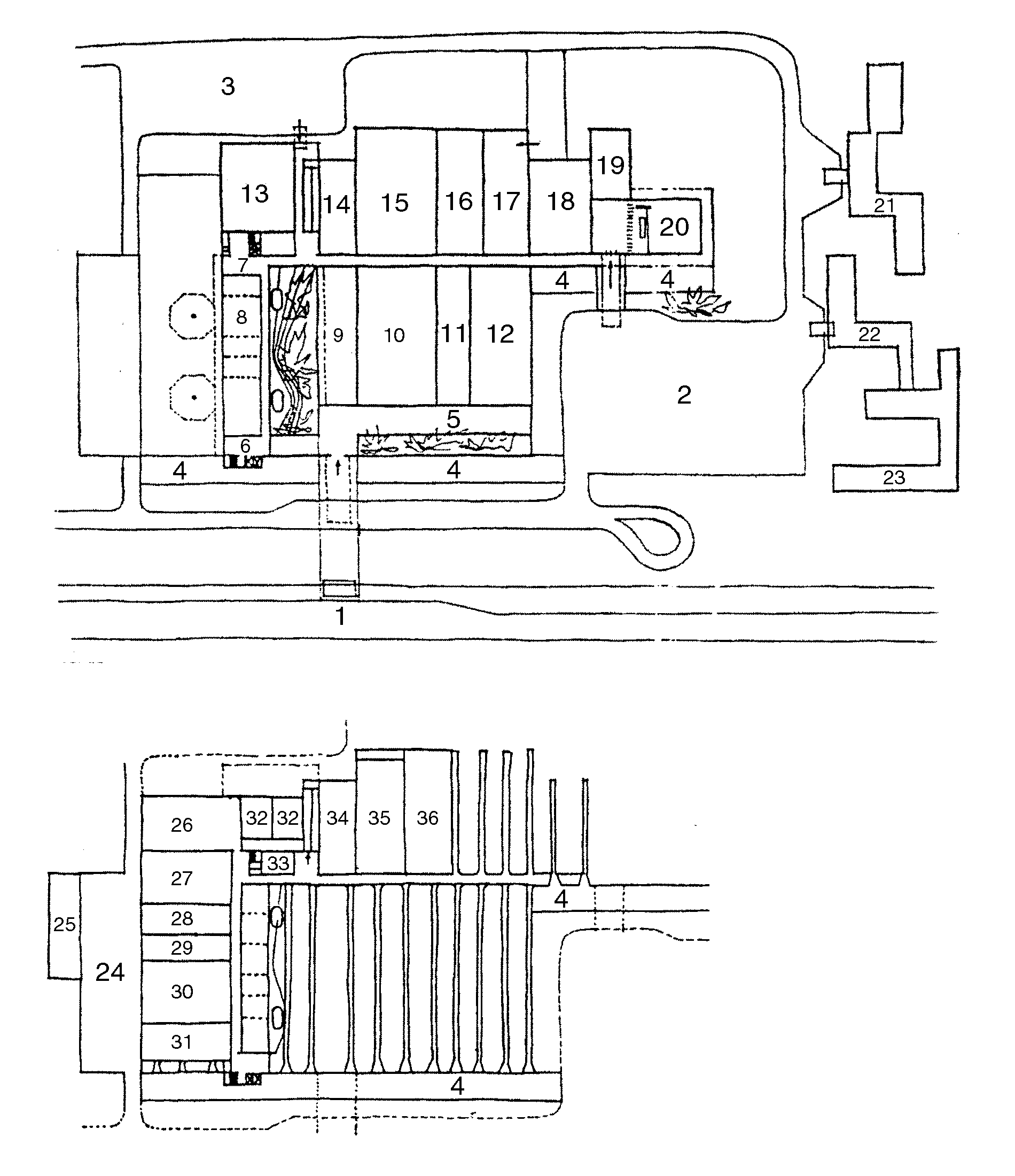
| Legenda
das plantas: 1 ponto de ônibus 2 estacionamento 3 estacionamento do pessoal 4 lago 5 espera do ambulatório 6 hall de visitantes 7 hall de serviço 8 setor de internação e alta 9 fisioterapia 10 ambulatório 11 oficina de ortopedia 12 raio X 13 vestiários 14 1o estágio 15 centro cirúrgico 16 CPD 17 laboratório 18 biblioteca 19 centro comunitário 20 auditório 21 residência médica 22 escola de excepcionais 23 creche 24 pátio de serviço 25 caldeiras 26 refeitório 27 cozinha 28 lavanderia 29 farmácia 30 almoxarifado 31 manutenção 32 caixa dágua 33 central de ar comprimido 34 subestação elétrica 35 central de material 36 central de ar condicionado 37 tratamento e expurgo 38 gesso |
|
|
|
© ponto 1999 | www.ponto.org | 5 | extra | index | lista | cadastro | webmaster@ponto.org |